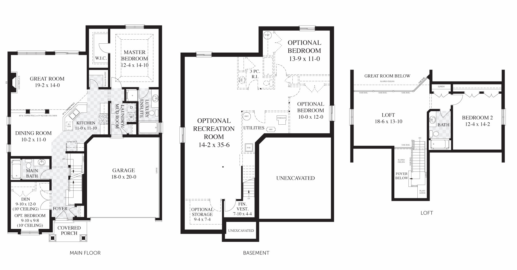
• Hampton R 2163 sq.ft

  • This Unit
  • exterior
  • floor plan
  • virtual tour
  • SEND TO EMAIL
  •